End-to-End Project Management
We handle every detail—from design and material selection to installation and inspection—for a truly hassle-free experience.
Transform blank walls into vibrant focal points with bespoke wall panels, textured finishes, custom wallpaper, and artistic accents that showcase your style.

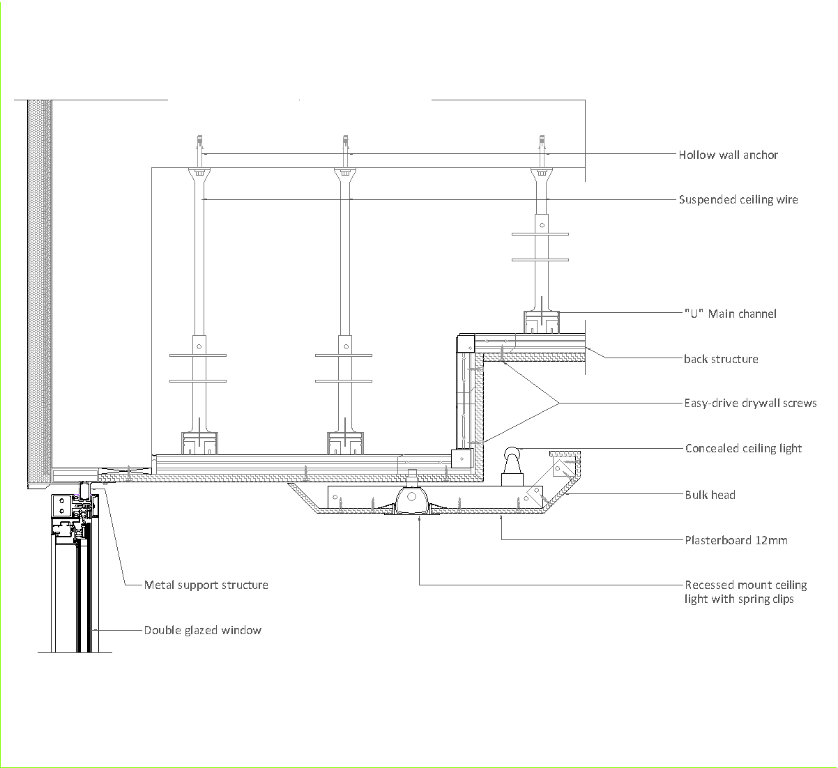
From contemporary gypsum designs to classic false ceiling concepts, we create layered visual interest while integrating lighting and acoustic enhancements for comfort and elegance.

We specialize in builder workspace and office decor, embracing nature through greenery, natural materials, and biophilic design principles that enhance productivity and well-being.

No project is too minor—our team expertly handles fittings, mirror installations, decorative trims, and finishing touches that make interiors unique and refined.

Seamless integration of electrical work ensures safety and aesthetic appeal, including ambient lighting, accent lighting, and intelligent controls for a modern living or work environment.

From initial concept to aligned execution, our architects collaborate with you to turn ideas into fully-realized functional spaces, maintaining harmony with your vision at every stage.

Our tailored furniture solutions blend ergonomic design and visual appeal, offering everything from workstations to statement pieces that suit your daily needs and aesthetics.

We handle every detail—from design and material selection to installation and inspection—for a truly hassle-free experience.
Every project is a reflection of our client’s taste and lifestyle, designed for lasting comfort and satisfaction.
Our skilled decorators, craftsmen, and engineers bring years of experience to ensure quality, safety, and punctual delivery.
We use premium materials and cutting-edge techniques to deliver durable, sustainable, and visually stunning results.
Over the years, we have successfully completed numerous projects across the UAE and beyond, earning a reputation for excellence in design and craftsmanship. Our portfolio showcases a diverse range of spaces, each reflecting our dedication to innovation and client satisfaction.